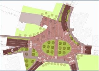
Con deliberazione della Giunta Comunale numero 215 del 21 Novembre 2013, veniva approvata la "REALIZZAZIONE DI NUOVA PIAZZA GRAMSCI NEL CAPOLUOGO" .
"Dopo ampia discussione" con voti unanimi e favorevoli, espressi per alzata di mano la Giunta infatti deliberava:
- di approvare, per le motivazioni evidenziate in premessa, ai sensi del D.Lgs. 163/2006 e s.m.i., l’allegato progetto definitivo “Realizzazione di nuova piazza Gramsci.” di importo complessivo pari a € 540.000,00 con il seguente quadro economico:
- Di dare atto che la spesa complessiva per l’esecuzione dell’intervento pari a € 540.000,00 è finanziato:
- per € 230.000,00 in conto del bilancio e nel piano esecutivo di gestione dell’esercizio 2013 al titolo II, Centro di Costo H1 “viabilità e servizi connessi”, intervento 01 “acquisizione di beni immobili”, fattore produttivo “realizzazione di nuova piazza Gramsci” (cap. 11411/01), finanziato con mutuo;
- per € 184.000,00 in conto del bilancio e nel piano esecutivo di gestione dell’esercizio 2013 al titolo II, Centro di Costo H1 “viabilità e servizi connessi”, intervento 01 “acquisizione di beni immobili”, fattore produttivo “realizzazione di nuova piazza Gramsci” (cap. 11411/02), finanziato con economie di mutui di cui alla deliberazione CC n. 10/2013;
- per € 126.000,00 in conto del bilancio e nel piano esecutivo di gestione dell’esercizio 2013 al titolo II, Centro di Costo H1 “viabilità e servizi connessi”, intervento 01 “acquisizione di beni immobili”, fattore produttivo “realizzazione di nuova piazza Gramsci” (cap. 11411/00), finanziato con apporto di capitale privato;
Era anche partita la caccia al nome da dare alla futura piazza ma anche su questo "silenzio".
Abbiamo chiesto in giro in attesa che la Sfinge risponda a possibili interrogazione della minoranza, per ora i commenti sono questi:
- "Io proverei a chiedergli che fine hanno fatto (forse nel verde pubblico, forse in altri lavori che stanno facendo??). Sembrano dei maghi che trovano soldi per strada, ma poi tante cose se le dimenticano...... e quello della rotonda grande è uno scempio che dura quasi da 10 anni" (E.P)
- "Faranno partire i lavori già finanziati più avanti, in modo da averne una indiscussa paternità politica agli occhi dei cittadini". (D.A.)
Adesso attendo i vostri in tutta trasparenza.
