Magazine Maternità

Una casa per quattro figli

Da Contofinoa3
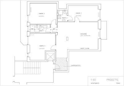
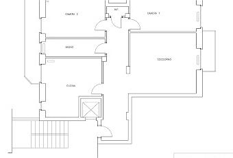
Ci siamo; domani iniziamo con i primi preventivi.Capitolato a posto, idee abbastanza chiare...Resta il dubbio su come procurarci i soldi che non abbiamo...Dopo mesi di incertezza abbiamo deciso di restare nella casa dove Danilo ed io ci siamo trasferiti nel 2003; dopo aver abitato insieme in due appartamenti differenti (questo è il terzo) non ce la sentiamo di ripartire.Traslocare però occorre farlo; già vi avevo accennato le difficoltà di dividersi la tazza del cesso... L'ora è giunta.Vi mostro come intendiamo trasformare la nostra casetta: un bagno piccolo e una cameretta in più, un unico ambiente per il giorno (dove poter anche disporre una più o meno lunga tavolata).Mi spiace enormemente non ci sia il mio babbo a consigliarci e seguirci...Nel tempo vi terrò aggiornati e vi mostrerò i passi, spero non troppo lenti, verso la meta.UNA CASA PER QUATTRO FIGLI
UNA CASA PER QUATTRO FIGLI

Potrebbero interessarti anche :

Ritornare alla prima pagina di Logo Paperblog

Possono interessarti anche questi articoli :